REAL ESTATE土地情報
【販売開始】リフォーム モデルハウス
アクセス
JR琵琶湖線 河瀬駅 徒歩14分
学 区
若葉小学校・彦根市立南中学校
写真
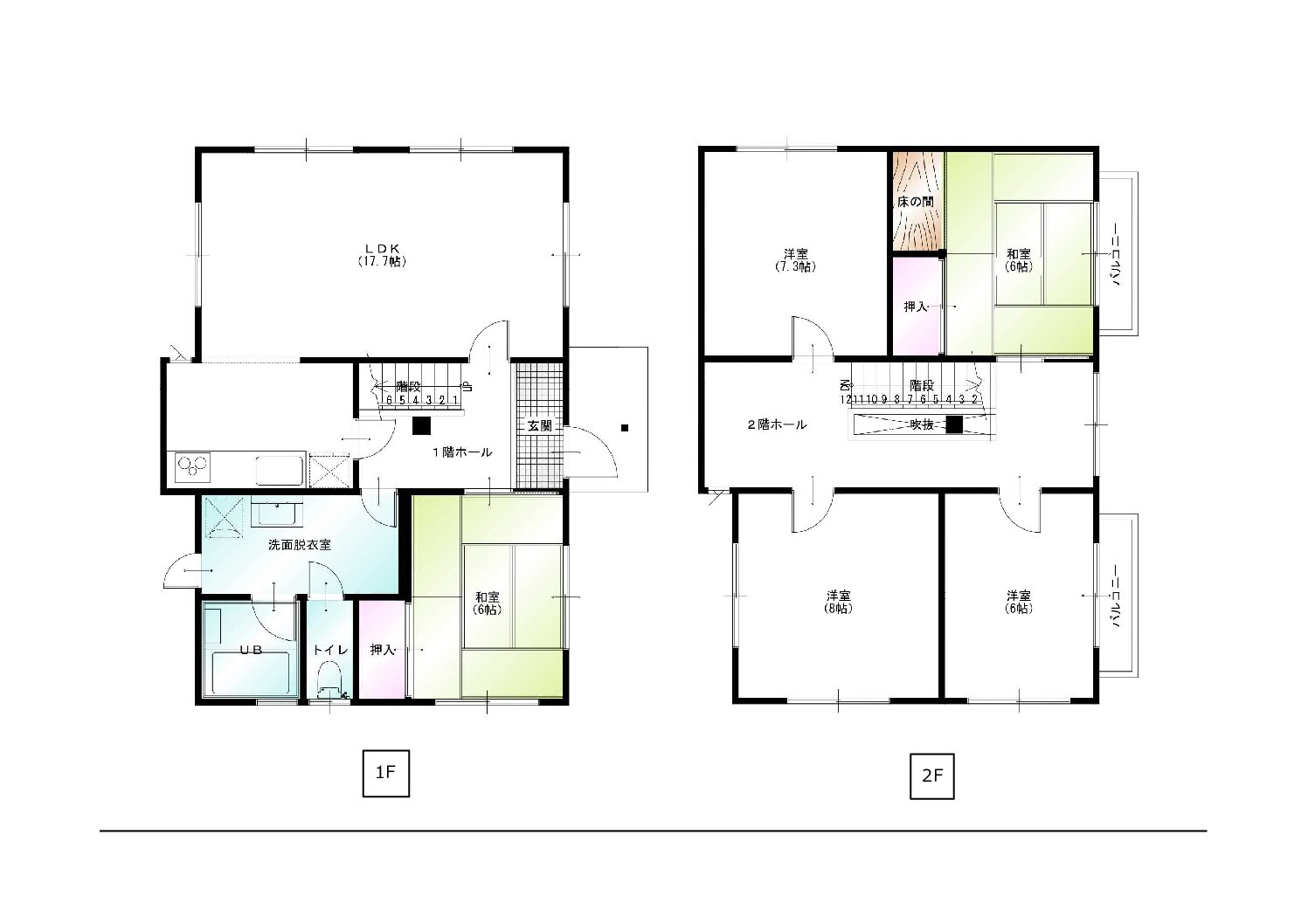
間取り

5LDK(リビングダイニングキッチン 17.7帖(1階) 和室 6帖(1階) 洋室 8帖(2階) 洋室6帖(2階) 洋室7.34帖(2階) 和室6帖(2階))
物件概要
| 価格 | 1,980万円 | 地目 | 宅地 |
| 間取り | 5LDK(リビングダイニングキッチン 17.7帖(1階) 和室 6帖(1階) 洋室 6帖(2階)洋室8帖(2階) 洋室7.34帖(2階) 和室6帖(2階) | 用途地域 | 第一種中高層住居専用地域 |
| 建物面積 | 125.86㎡ | 地勢 | 平坦 |
| 土地面積 | 162.32㎡ | 建ぺい率 | 60% |
| 駐車場 | 有3台 | 容積率 | 200% |
| 築年月 | 1988年3月(築37年) | 土地権利 | 所有権 |
| 所在地 | 滋賀県彦根市日夏町2750-126 | 引渡し国土法届出 | 不要 |
| 交通 | JR琵琶湖線 河瀬駅 徒歩14分 | その他費用 | – |
| 主要採光面 | 南東 | 現況 | 空家 |
| 建物構造 | 木造/2階建 | 引渡し | 即時 |
| 道路 | 幅員6m | 取引態様 | 売主 |
| 都市計画 | 市街化区域 | 備考 | 施工会社:ミサワホーム |
アクセス

















